重庆消防器材维修带您一起了解防护冷却系统设计要求
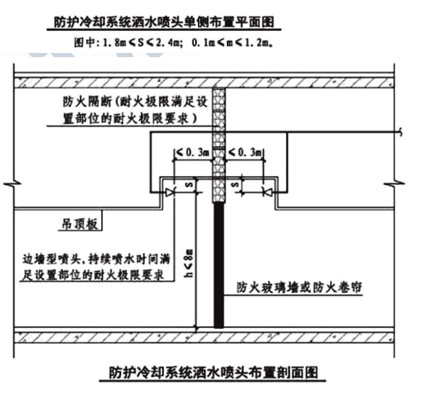
当采用防护冷却系统保护防火卷帘、防火玻璃墙等防火分隔设施时,系统应独立设置,喷头设置高度不应超过8m;当设置高度为4m-8m时,应采用快速响应洒水喷头;喷头设置高度不超过4m时,喷水强度不应小于0.5L/(s~m);当超过4m时,每增加1m,喷头强度应增加0.1L/(S`M)。
喷头的设置应确保喷洒到被保护对象后布水均匀,喷头间距应为1.8m-2.4m;喷头溅水盘与防火分隔设施的水平距离不应大于0.3m。持续喷水时间不应小于系统位置部位的耐火极限要求。


